Ausstellungsküche Nobilia Grün Lack inkl. NEFF/Berbel Geräte

9.999,00 EUR statt 0,00 EUR (Ehemaliger eigener Verkaufspreis)

Wir bieten als Küchenstudio eine hochwertige Nobilia Ausstellungsküche zum Verkauf an.
Die Küche stammt aus unserer Ausstellung, wurde nicht bekocht und ist somit quasi neu.

Ab Anfang März verfügbar

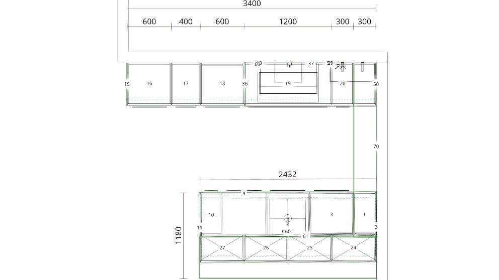
Maße der Küche:
Grundriss siehe Bilder
Breite: ca. 3,40m
Breite Halbinsel: ca. 2,43 / Tiefe 0,95m
➡️ Die Küche ist anpassbar an Ihren Raum – wir helfen Ihnen gerne bei Planung und Anpassung.

Details zur Küche:
Hersteller: Nobilia
Form: Zeile + Halbinsel
Frontfarbe: Mineralgrün Antifinger
Arbeitsplatte: Holz Eiche
Griffe: Schwarz Reling

Ausstattung / Highlights:
Alle Einbaugeräte von NEFF, inklusive:
Kühl-Gefrier Kombination: KI2526DE0 Energieeffizienzklasse E ; jährlicher Energieverbrauch 151kWh/annum ; Nutzinhalt des Kühlfachs 213L ; Nutzinhalt des Gefrierfachs 15L ; Luftschallemissionen 36 dB
Backofen: B69CS7KY0 Energieeffizienzklasse A+ ; Energieverbrauch Ober/Unterhitze 0,87kWh/Zyklus Umluft 0,69 kWh/Zyklus ; Nutzbares Volumen 71L
Kochfeld: T68YYV4B0
Geschirrspüler: S275EBX13E Energieeffizienzklasse B; Nennkapazität 13 Standardgedecke; Energieverbrauch 64 kWh; Wasserverbrauch in Liter pro Programmdurchlauf 9,0L; Dauer Eco-Programm 3:35h; Luftschallemissionen42dB
Dunstabzugshaube Berbel: Ergoline 2 80cm (Aktivkohle Filter BUF150+) Energieeffizienzklasse A ; jährlicher Energieverbrauch 34kWh/annum ; Filterleistung B ; Luftschallemissionen 59dB
Granit Spüle sowie Armatur
Einbausteckdose und Beleuchtung

Hinweis:
❗ Dekoration ist nicht im Angebot enthalten

Verfügbarkeit:
Ab Anfang März verfügbar

Preis & Service:
Preis inkl. MwSt. gilt bei Selbstabholung
Lieferung & Montage gegen Mehrkosten möglich

Erweiterungsmöglichkeiten:
Zusätzliche Schränke können auf Wunsch ergänzt werden – Planung, Lieferung und Montage übernehmen wir gerne, gegen Mehrpreis.

Besichtigung & Kontakt:
Eine Besichtigung vor Ort ist jederzeit möglich, um zu prüfen, ob die Küche bei Ihnen passt.

Erreichbarkeit:
Montag–Freitag: 10:00 – 18:00 Uhr
Samstag: 10:00 – 14:00 Uhr

Wir freuen uns auf Ihre Anfrage und beraten Sie gerne persönlich.